欢迎访问:广州绿捷美宿建筑科技有限公司官网

轻奢帐篷-SYE30

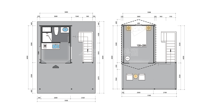
SYE30帐篷主体 5m6m,L1/L2 室内面积分别为 9.8㎡、9.2㎡,在 A15 基础上增设一层形成独特阁楼设计:一楼设浴室、厨房与用餐区,二楼 3.5m2.8m 作卧室,既提升居住私密性又拓展空间,为户外生活添趣。上下均带阳台,配两把躺椅与小桌,适配小家庭休憩;其不仅是帐篷,更能引领客户体验阁楼式户外生活新高度。

尺寸参数 结构参数 性能参数
主体尺寸: 5m*6m 外帐材料:750g-PVC涂层布 抗风等级:8级
室内尺寸:3.5m*2.8m 内帐材料: 370g-牛津布 使用寿命:10年
室内面积: L1/ 9.8㎡、L2/ 9.2㎡ 结构材料:芬兰松木 国标阻燃,防潮防霉
露台面积:12+12㎡ 连接件材料:防锈钢材 灵活安装,不限环境
外部高度:2.8m/1.8m
内部高度:2.5m/1.7m