欢迎访问:广州绿捷美宿建筑科技有限公司官网

轻奢帐篷-SYEX45

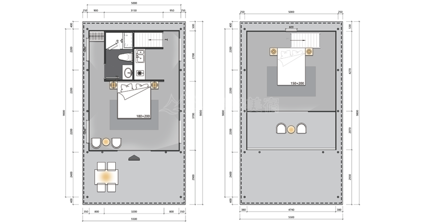
轻奢SYEX45 帐篷为两层阁楼设计,常采用双层帐结构,既拓展使用空间又提升居住舒适度;二楼可作观景台或额外休息区,丰富功能与趣味性。其空间布局兼顾传统住宅的舒适体验与户外露营的自然氛围。

尺寸参数 结构参数 性能参数
主体尺寸: 5m*9m 外帐材料:750g-PVC涂层布 抗风等级:8级
室内尺寸:4.8m*6.4m 内帐材料: 420g-牛津布 使用寿命:10年
室内面积: 31+20㎡ 结构材料:芬兰松木 国标阻燃,防潮防霉
露台面积:13+11㎡ 连接件材料:防锈钢材 灵活安装,不限环境
外部高度:5m
内部高度:2.2m