欢迎访问:广州绿捷美宿建筑科技有限公司官网

轻奢帐篷-SYG32

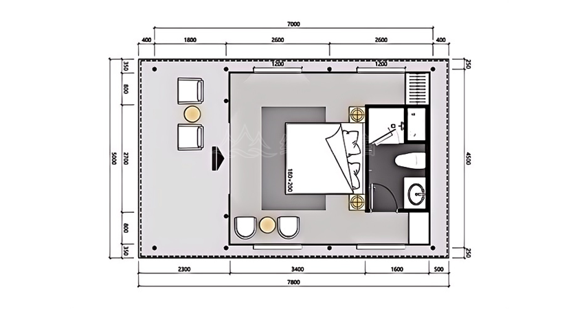
在打造奢华户外体验的设计理念中,我们同样重视空间利用率与成本控制。SYG32紧凑型经典轻奢帐篷,正是基于这份考量精心打造——以更精巧的尺寸、更经济的投入,为露营者带来不减质感的轻奢体验。 别因“紧凑”低估它的容纳力:浴室、电视、衣柜、沙发等酒店标准房配置皆可齐备。无论你是渴望户外冒险的旅行者,还是想寻觅宁静的休闲者,SYG32都能精准匹配你对高品质生活的需求。

尺寸参数 结构参数 性能参数
主体尺寸: 4.5m*7m 外帐材料:750g-PVC涂层布 抗风等级:8级
室内尺寸: 4.3m*5m 内帐材料: 370g-牛津布 使用寿命:10年
室内面积: 22㎡ 结构材料:芬兰松木 国标阻燃,防潮防霉
露台面积:8㎡ 连接件材料:防锈钢材 灵活安装,不限环境
外部高度:4.2m/2.1m
内部高度:3.9m/2m