欢迎访问:广州绿捷美宿建筑科技有限公司官网

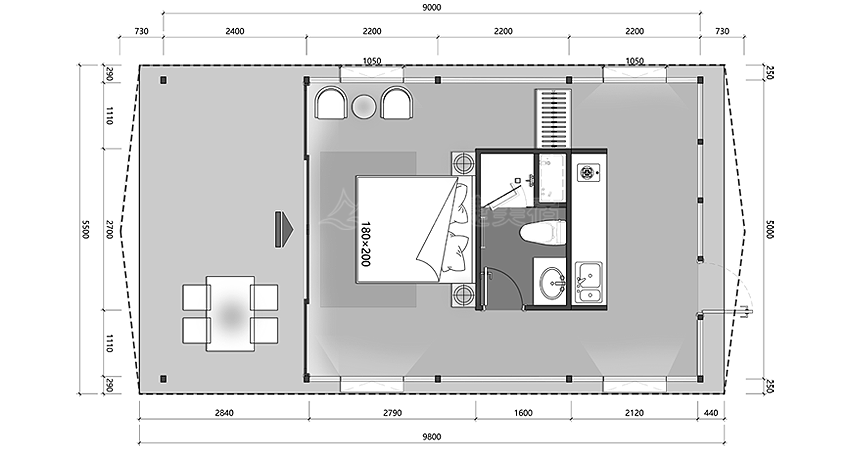
轻奢帐篷-SYKX45

SYKX45帐篷以玻璃墙、玻璃门搭配无绳索结构打造,居住者透过通透玻璃可无遮挡观赏户外景致,既能深度感受自然互动,又借玻璃透光性减少人工照明使用、助力节能,堪称真正的 “阳光房”,带来美观与实用兼具的户外居住体验;且优质玻璃具备出色安全性能,能抵御一定外力冲击,进一步提升居住安全性。

尺寸参数 结构参数 性能参数
主体尺寸:5m*9m 外帐材料:750g-PVC涂层布 抗风等级:8级
室内尺寸:4.9m*6.5m 内帐材料: 420g-牛津布 使用寿命:10年
室内面积:32㎡ 结构材料:芬兰木 国标阻燃,防潮防霉
露台面积:18.8㎡ 连接件材料:防锈钢材 灵活安装,不限环境
外部高度:4m
内部高度:3.3m