SYY45帐篷凭借宽敞空间、坚固结构与科技材料,叠加卓越抗风性、持久耐用性与环保理念,再加上简易安装优势,为户外爱好者开辟了全新居住选择 —— 它不只是传统意义上的帐篷,更是开启户外奢华生活的新载体。对创业者来说,SYY45 的高品质与独特设计,能成为吸引高端客户的核心竞争力,为业务注入差异化优势;无论是融入户外度假村,还是打造独立豪华露营项目,它都能为客户带来难忘住宿体验,且耐用、易安装的特性,还能显著降低运营与维护成本。
欢迎访问:广州绿捷美宿建筑科技有限公司官网
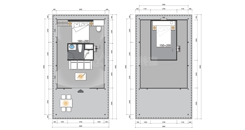
SYY45帐篷凭借宽敞空间、坚固结构与科技材料,叠加卓越抗风性、持久耐用性与环保理念,再加上简易安装优势,为户外爱好者开辟了全新居住选择 —— 它不只是传统意义上的帐篷,更是开启户外奢华生活的新载体。对创业者来说,SYY45 的高品质与独特设计,能成为吸引高端客户的核心竞争力,为业务注入差异化优势;无论是融入户外度假村,还是打造独立豪华露营项目,它都能为客户带来难忘住宿体验,且耐用、易安装的特性,还能显著降低运营与维护成本。