跳到内容
欢迎访问:广州绿捷美宿建筑科技有限公司官网
152-1117-4444
400-999-1656
首页
关于我们
产品展示
解决方案
项目案例
新闻中心
联系我们
首页
关于我们
产品展示
解决方案
项目案例
新闻中心
联系我们
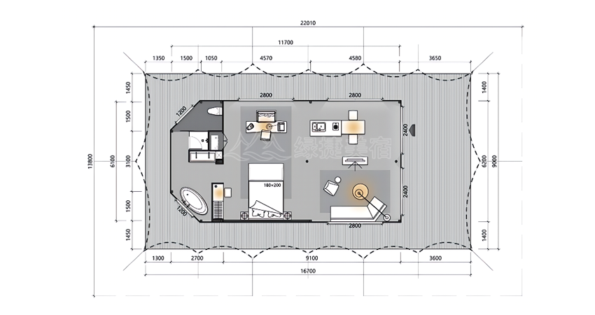
野奢帐篷-SYDR69
作为户外住宿领域的创新先锋,我们骄傲推出专为豪华露营群体打造的终极之选 ——SYDR69帐篷。其精心设计的标准间户型,规划出两个宽敞独立房间,充分满足客户对空间尺度与居住私密性的双重需求。而客厅、卧室、浴室均配备豪华级配置,更让客户在户外场景中,也能享受到如居家般的舒适与便捷。凭借高端配置与出色耐用性,SYDR69帐篷亦成为户外住宿市场的优选产品。
尺寸参数
结构参数
性能参数
主体尺寸:9m*16.7m
外帐材料:550g网格布-帆布
抗风等级:9级
室内尺寸:6.2m*11.8m
内帐材料:450g-帆布
使用寿命:12年
室内面积:71㎡
结构材料:进口-樟子松
国标阻燃,防潮防霉
露台面积:79.3㎡
连接件材料:防锈钢材
灵活安装,不限环境
外部高度:5m
内部高度:3.4m