跳到内容
欢迎访问:广州绿捷美宿建筑科技有限公司官网
152-1117-4444
400-999-1656
首页
关于我们
产品展示
解决方案
项目案例
新闻中心
联系我们
首页
关于我们
产品展示
解决方案
项目案例
新闻中心
联系我们
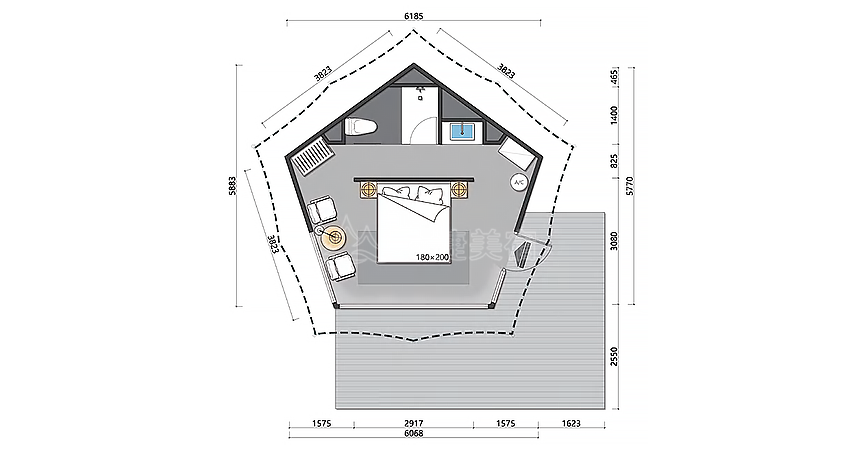
酒店帐篷-SYHX25
我们的酒店帐篷具备极强的场景适配性,能精准满足多元需求 —— 无论是度假村的休闲氛围、野营区的自然属性,还是山地酒店的山野格调、海滨酒店的浪漫风光,都能为您匹配到最契合的解决方案。更值得一提的是,帐篷搭建效率高,且便于移动与重新规划布局,为您的酒店运营注入更多灵活性,大幅提升日常管理的便利性。
尺寸参数
结构参数
性能参数
主体尺寸:6m*6.3m
外帐材料:1050g-PVDF建筑膜材
抗风等级:10级
室内尺寸:5.8m*6.1m
内帐材料:850g-PVC涂层布
使用寿命:15年
室内面积:24㎡
结构材料:进口-樟子松
国标阻燃,防潮防霉
露台面积:21㎡
连接件材料:防锈钢材
灵活安装,不限环境
外部高度:5.5m
内部高度:3.7m